Traditional Restroom Trailer 

Traditional Restroom Trailer 

Our Traditional Restroom Trailer delivers a dependable and comfortable experience for guests at busy events. It’s a practical, professional solution that keeps people moving with ease.

Our trailers arrive fully stocked, ready to use, and placed exactly where you need them. Request a quote today.

A Reliable Setup for High Usage Events

A Reliable Setup for High Usage Events

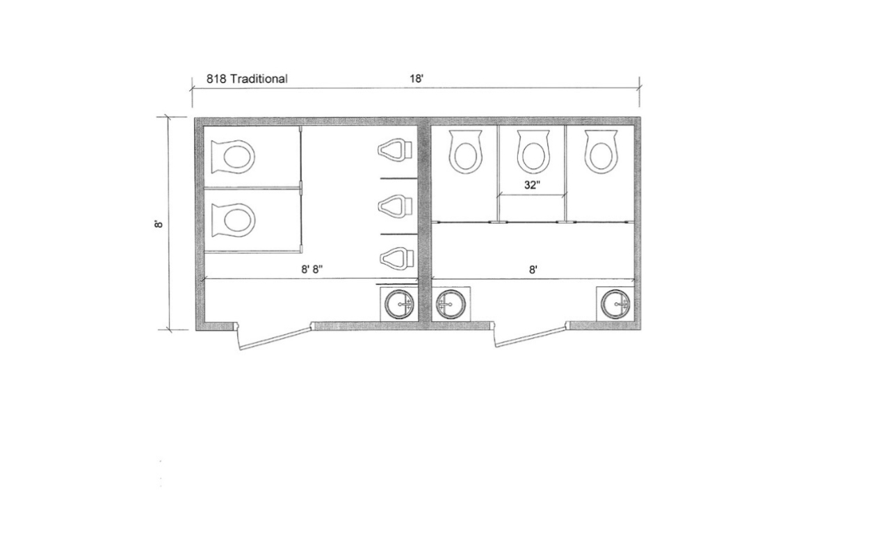
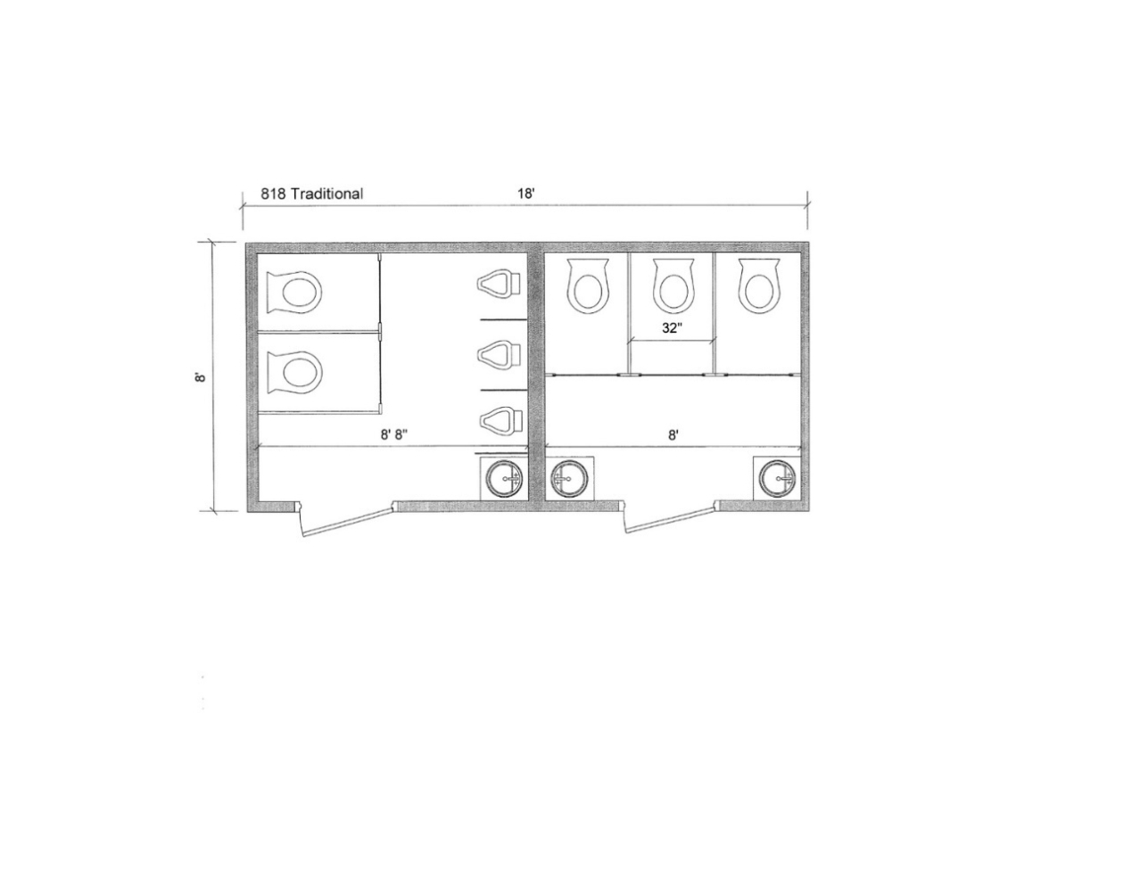
Inside, the men’s side includes two stalls, three urinals, and a sink, while the women’s side features three stalls and two sinks, ensuring efficient flow and minimal wait times. Ideal for large outdoor gatherings, festivals, and even temporary facility needs.  Organizations often use this trailer during remodeling due to it's thoughtful design and ease to maintain, it provides a clean, comfortable, and welcoming restroom experience.  This option is designed to comfortably accommodate events with 500 - 1,000 guests, ensuring a clean, convenient, and reliable experience for everyone in attendance.

Premium Comfort
Premium Comfort

Spacious, comfortable interiors with quality finishes provide a refined restroom experience for your guests.

Effortless Crowd Management
Effortless Crowd Management

High-capacity trailers streamline traffic, keeping lines short and your event running smoothly.

Impeccable Cleanliness
Impeccable Cleanliness

Fully stocked with soap, paper towels, and running water to ensure a safe and sanitary environment.

Seamless Support
Seamless Support

From delivery and setup to pickup, the B&R Services team handles every detail so you can focus on your event.

Schedule your service today!

Indianapolis-Area Portable Restroom Rental

Indianapolis-Area Portable Restroom Rental

B&R Portable Restrooms & Services has been providing portable restrooms of all types to central Indiana communities since 1998. With years of experience, we are a knowledgeable and reliable portable toilet rental provider. Call us at 317-858-8066 to see what we can do for you!

Get A Quote